Project

PMV 7

Having been neglected for half a century, this house has been reconfigurated internally to house a growing family and carefully restored externally to correspond with the family of historic houses in the street.

Tucked away on a quiet street behind Frederiksberg Town Hall and Frederiksberg Have in central Copenhagen the house sits quietly reminiscing its suburban time.

Built by a carpenter in 1912 the house is one of a series of historic houses on the street. The house is typical for its time with solid exposed brick walls, pitched slate roof and detailed woodwork - details referring to previous historical periods in Denmark.

In 1962 engineer, doctor and psychologist Steen Ahrenkiel bought the house. He transformed the house to a living laboratory, experimenting with genetic modification of plants and collecting rare mineral stones in the basement, especially cryolite from Greenland. A particular atmosphere flourished but original windows, doors, stairs and kitchen were simultaneously replaced with low quality replacements and the house was later left to decay. When the new owners took over the house in 2022 it was overgrown and completely cluttered. Even though Steen had died, stories about him remained alive in the area. 

The house was in poor condition, so we renovated the slate roof with a climate-friendly build up using wood-fiber insulation, exchanged the windows to imitate the originals, and restored the facade's brick work. Internally we wanted to bring back some of the historical atmosphere while adding new layers suiting the modern family living there now. 

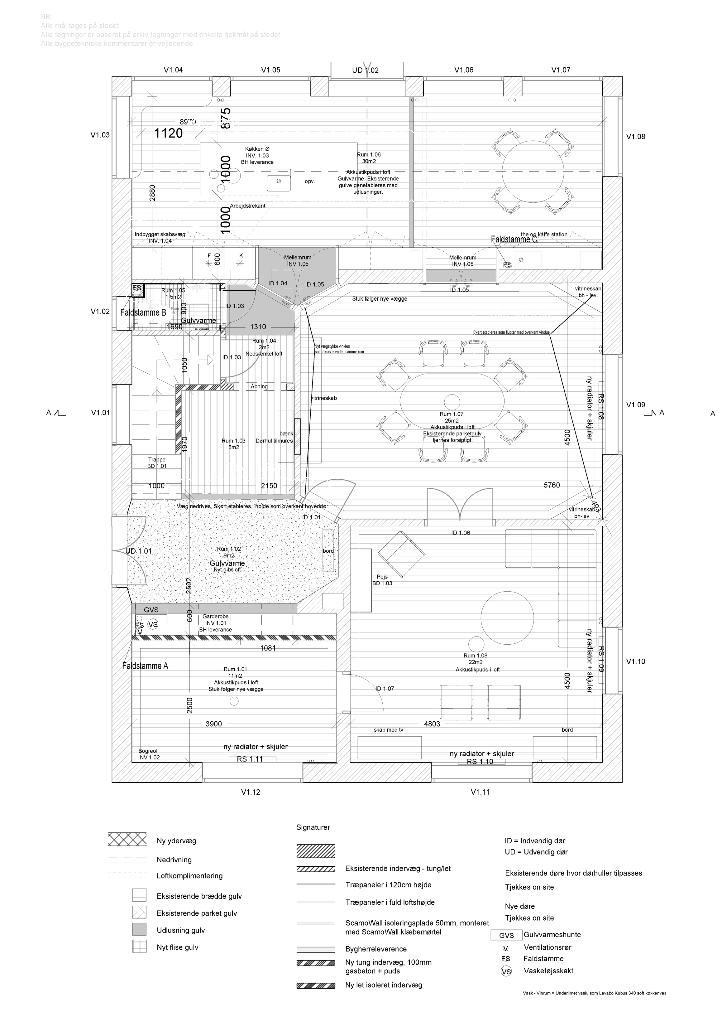
Entering the house we added Cryolit in the terrazzo flooring as a tribute to the former owner. 

A new staircase was placed in the middle of the plan to create a social space connecting the floors and drawing in skylight. New doors were set at an angle to create views across the house, creating visual connections making the house feel fluid, social and dynamic.

In the extension towards the north where Steen Arhrenkiel experimented with genetic modification of plants, we emphasized the connection to the past and to the garden, expanding the room and adding a green door and windows opening towards the garden.

Year
2025

Size
250m2

Location
Copenhagen

Photos
Peter Dalsgaard

Illustrations
Fruergaard Kampmann

Client
Private