Project

Original Coffee

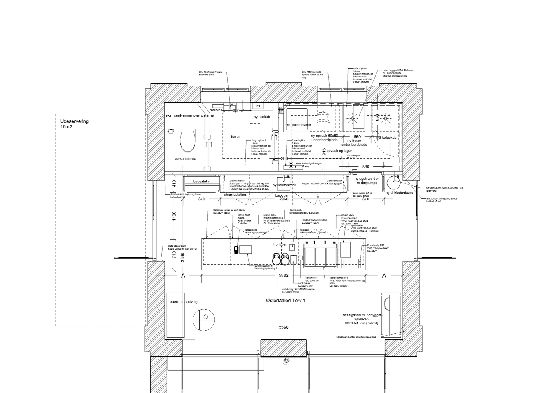
Within the leafy enclave of Østerbro in Copenhagen, we repurposed a historic gatehouse to accommodate a new coffee shop, balancing heritage with modern hospitality.

The new coffee shop is located in one of two original gatehouses entering the barracks of 1896. With its exposed red brick walls, white palladian windows, mansard roofs and strict symmetry the buildings form a typical neo-baroque complex. In the 1900’s it was repurpused for commercial use.

The gatehouse’s compact, perfectly square geometry dictated a move away from traditional seating toward a more fluid, transitional space.

Inspired by the flower stalls of the adjacent square, we envisioned the interior as an extension of the public square — an indoor, outdoor pavilion that remains open to the elements throughout the season.

Rather than masking the building’s humidity challenges with plaster, we embraced a raw finish on the walls. This durable, unrefined surface not only withstands the heavy wear of a high-traffic café but reinforces an honest aesthetic. To balance this rugged shell, we introduced warm timber for the bar area, creating a tactile and inviting workspace for the baristas.


To further blur the boundary between inside and out, the sides of the bar are clad in mirrored, polished steel, reflecting the surrounding plants and drawing the greenery of the square deep into the room. While the interior layout strictly adheres to the site’s historic symmetry, it does so through a contemporary lens—honoring the 1896 complex while serving the modern rhythm of the city.

Year
2025

Size
30m2

Location
Copenhagen

Photos
Marcus Trappaud Bjørn

Illustrations
Fruergaard Kampmann

Client
Original Coffee ApS